Heliopolis Integral Clinics

Heliopolis Integral Clinics

  • Owner Heliopolis Integral Clinics
  • Area 500
  • Cost ..........
  • Date 2000
  • Description Heliopolis Integral Clinics for Health Insurance
  • Service Health care
project-img
Request Presentation

Project Description

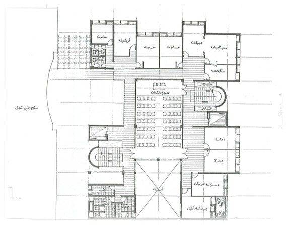
The project was built in 1993 and is located on al Ahram street in Heliopolis, which has been one of the city's most prominent routes since its inception. It finishes with the Basilica and Ramses street as a side street. The land already had an existing building, which was an old smaller clinic. The design attempted to introduce a building with a neutral style that would mix with the urban surroundings and the existing buildings on the site. It serves as an integrated clinic encompassing various disciplines, and the design was intended to express the environmental concept that integrates with its physical surroundings and creates an indoor environment that meets human thermal, visual, and acoustic needs, as well as indoor environmental quality of the highest standards, while also facilitating social integration and efficient technological operation. The building consists of a basement, a ground floor, and five typical stories. The main entrance for patients is on Al Ahram Street, while doctors and medical staff enter on Ramses Street. The building's central space is designed for a patient waiting hall, with the principal patient circulation separated from the medical staff area. Medical records and pharmacy are located on the ground floor, X-rays and physiotherapy are in the basement, and clinics are divided into three clusters. Each cluster consists of four clinics on the typical floors. The clinic floors are linked to the original building via a bridge that runs from the first to the fourth floors, while the fifth story serves as the administrative area. A 60 cm thick building envelope functions as a system to filter the outer environment and prevent heat gain, while windows are recessed and sun-protected.